Üzletek és irodák
Lakás Kép
Elérhető
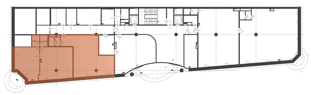
BHI12
Méret (m²)
129.24 m²
Szobák száma
Emelet
földszint

Tájolás:

Lakáshűtés: Igen

Fürdő és WC:


144 980 000 Ft

Alaprajz

Alaprajz

Egyéb információk

Letölthető dokumentumok

Alaprajz megtekintése
Szintrajz megtekintése

Ajánlatkérés

Kapcsolat

Telefon

Cím

1086, Szeszgyár utca 4.