

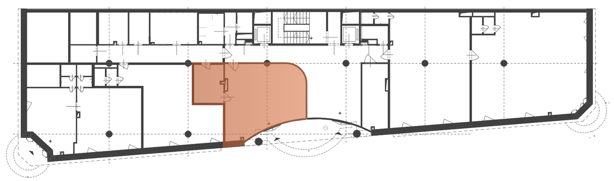
BHI03
59.49 m²
1
földszint
Tájolás: Déli
Lakáshűtés: Igen
Fürdő és WC: Együtt
Egyéb információk
- Válaszfal alatti terület: 0.44 m²
- Szoba: 57.09 m²
- Kamra: 11.32 m²
Letölthető dokumentumok
Alaprajz megtekintéseSzintrajz megtekintése


Tájolás: Déli
Lakáshűtés: Igen
Fürdő és WC: Együtt