

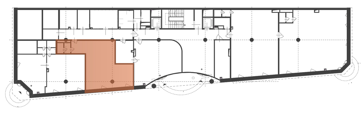
BHI02
56.47 m²
1
földszint
Tájolás: Déli
Lakáshűtés: Igen
Fürdő és WC: Együtt
Egyéb információk
- Szoba: 52.40 m²
- Válaszfal alatti terület: 0.58 m²
Letölthető dokumentumok
Alaprajz megtekintéseSzintrajz megtekintése


Tájolás: Déli
Lakáshűtés: Igen
Fürdő és WC: Együtt