

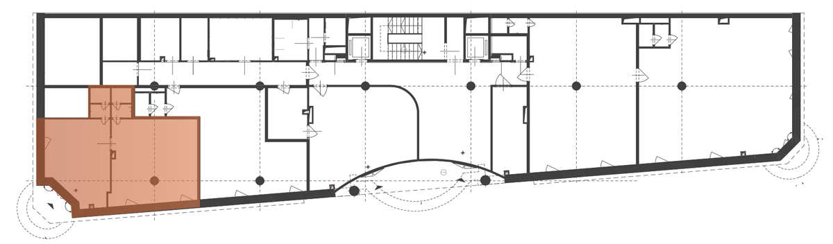
BHI01
72.77 m²
1
földszint
Tájolás: Délnyugati
Lakáshűtés: Igen
Fürdő és WC: Együtt
Egyéb információk
- Válaszfal alatti terület: 1.23 m²
- Szoba: 65.93 m²
Letölthető dokumentumok
Alaprajz megtekintéseSzintrajz megtekintése


Tájolás: Délnyugati
Lakáshűtés: Igen
Fürdő és WC: Együtt